
























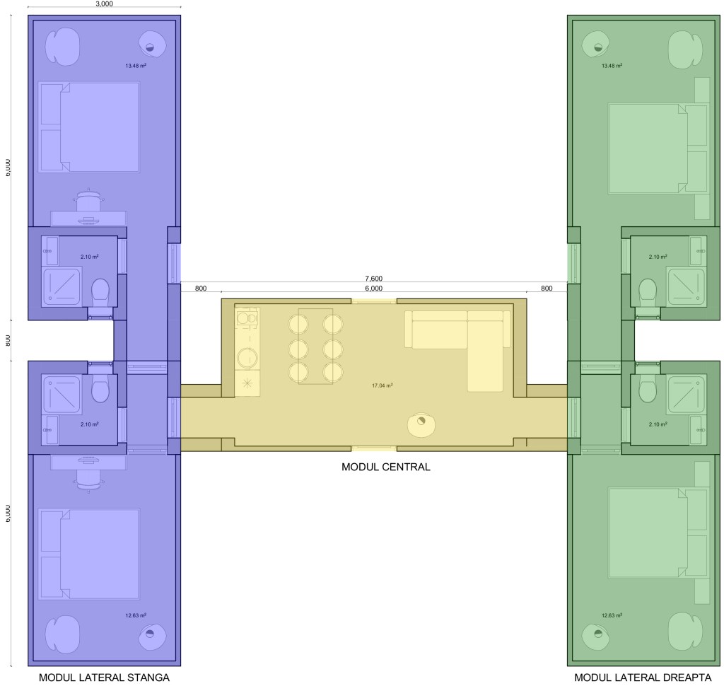
Modularitatea quibul Q2C-S permite mai multe configuratii. Puteti alege formula completa de unitati sau sa adaugati pe rand, in functie de nevoia de spatiu, cate un modul.




Startul ideal este un modul lateral independent, care ofera toate functiunile necesare (baie, bucatarie si livingroom). La acesta se poate adauga ulterior un modul central si apoi un altul lateral, acestea devenind dormitoare , iar cel din mijloc servind ca bucatarie si livingroom.










Oricare din module, central sau lateral are acelasi pret. La plata avansului puteti mentiona pe care-l doriti. Ulterior vom lua legatura pentru a stabilii detalii constructive si pentru transport.
PACHET DE BAZA PENTRU ORICARE DIN MODULE (CENTRAL SAU LATERAL)
15000 EURO
C U M P A R A
Avans (40%)
Quibul este contractat si va fi gata de livrare in termen de 3 luni.
Plata 2 (40%)
Quibul este in lucru si platesti a doua rata.
Plata finala (20%)
Quibul este livrat la locatie pe elemente sau gata ansamblat
A. SPECIFICATII PACHET DE BAZA
1. Sasiu metalic fix 100x150mm, vopsit antracit; cu roti (nu necesita autorizare).
2. Placa inferioara din cadru de lemn de brad, osb si izolatie de vata bazaltica sau polistiren, cu grosime de 190 mm; finisaj parchet melaminat 10 mm, stejar natur; plinta mdf.
3. Usi exterioare cu profil pvc si pachet tripan; pereti cortina tripan de 40 mm cu sticla securizata.
4. Pereti interiori din cadru de lemn de brad, osb, gipscarton si izolatie de vata bazaltica, cu grosime de 100 mm; finisaj zugraveala alba si SPC pentru peretii de baie
5. Usi interioare din mdf vopsit alb cu feronerie de calitate.
6. Instalatiile sanitare pregatite pentru lavoar, dus, wc, chiuveta (la care se racordeaza si masina de spalat vase si haine); instalatiile electrice pregatite pana la doze conform mobilarii functionale propuse; doua prize exterioare; instalatii pregatite pentru aer conditionat; racord la acoperis pentru cos de fum; grile de ventilatie .
7. Structura pereti si sarpanta din grinzi de rasinoase finisate cu lazur cerat sau cadre metalice 100×100; invelitoarea din panouri sandwich cu grosime de 150 mm cu izolatie de spuma si finisaj din tabla vopsita alb interior si antracit exterior.
8. Quibul este livrat gata montat ( daca este acces pentru camion si macara) sau pe elemente. Montajul il poti face tu, dupa manualul de instructiuni sau poti solicita serviciul nostru de ansamblare.
B. OPTIUNI LA PACHETUL DE BAZA
1. Sina perimetrala pentru obloane exterioare (calculata la metrii liniari pentru laturile ce se doresc umbrite).
2. Oblon exterior, din lemn de rasinoase netratat, cu balamale si sistem de prindere pe sina. (calculat la bucata).
3. Parasolar din lamele de lemn netratat pentru timpan triunghiular (calculat la bucata).
4. Rulou textil interior, actionat electric (calculat la bucata).
5. Telecomanda actionare rulouri interioare.
